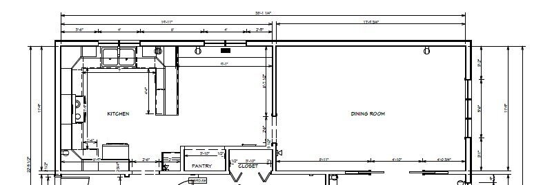
What was once a U-shaped honey-oak kitchen with breakfast nook and separate dining space (turned kid's play area), is now reimagined with improved functionality, flow and timeless finishes. Our interior design and space planning adjusted the kitchen location and footprint, bumping it towards the rear of the house an joining it with the dining area, so that a proper mudroom at the garage entry could be worked into the floor plan. One kitchen window was resized to land perfectly centered on the the new sink location, and the size of doorways between rooms were increased for a more open feel throughout. 
A generous island means loads of space for prep, homework and conversation.

Floor Plan Before

Our redesign...

The cabinetry? Here IKEA bones are elevated with custom doors and panels from Swedish Door Co. The client's favourite colour - blue - is grounded and balanced by wide plank walnut flooring, adding warmth and depth. We also gave the fireplace a full makeover with a floor-to-ceiling ledgestone surround and a new gas insert.
Now, there’s a dedicated space to drop boots, hang gear, and get out the door without breaking stride—and a kitchen designed for cooking, gathering, and admiring.

Construction by Select Urban General Contractors. Loose furniture & decor by others.

an interior is the natural projection of the         

soul

- coco chanel

Curious if we click?

let's talk design goals & process

Schedule a call to feel it out—no pressure, just possibility.